Comment
commander nos
menuiseries
menu pos

Votre question – notre réponse

Suivant votre demande nous présenterons l’offre et de bon gré apporterons des conseils

menu pos

Prise des mesures et commande

Après la prise des dimensions ( si vous la souhaitez ) assistance techniques, élaboration des détails, confirmation de commande elle est mise en réalisation

menu pos

Livraison

Le délai de livraison demandée urgente - Laste Minute - est de 10 jours. Celui Standard et de 28 à 42 jours.

menu pos

Pose

Les menuiseries sont déchargés et posées par les techniciens. S’il s’agit d’un bâtiment ancien, les menuiseries anciennes sont démontées.

plus

Menuiseries aluminium
„Monobloc” pour la pose en applique – isolation par l’intérieur

Chaque système en aluminium Schüco, Aluprof ou Aliplast donne des moyens de créer les menuiseries adaptées à la plupart des conditions françaises de pose en applique.

L’épaisseur d’isolant varie en général de de 60 à 250 mm ce qui nécessite des adaptations au niveau des dormants, adaptations réalisées à l’aide des profils supplémentaires, dits „tapées d’isolations” lesquels élargissent les dormant suivant besoins du projet.

Lors de la fabrication des menuiseries les pièces d’attache de ces profils dit „tapées d’isolations” sont fixées sur les dormants.
Les menuiseries et ses tapées d’isoaltions sont transportées et livrées séparement pour des raisons logistiques.
En effet, les tapées d’isolation étant les pièces étroites et longues – parfois jusqu’à 2000, 4000, 5000 mm ou plus – et , en même temps, n’étant pas alvéolées, installées sur les menuiseries n’ont pas de rigidité suffisante pour supporter les conditions de transport.
Les tapées d’isolation sont transportées séparement, protégées et doivent être assamblées avec les dormants sur le chantier.

L’assemblage ne nécessite pas des qualifications particulières mais – bien évidement – il est préférable qu’il soit exécuté par un poseur professionel

L’assemblage se fait par emboîtement mécanique des tapées d’isolation avec les dormants à travers des pièces d’attache déjà fixées à l’usine sur les dormant.

Les tapées d’isolation sont découpées sur mesure précise à l’usine, lors du montage des fenêtres et baies.

En plus des tapées d’isolation, si le client souhaite, nous pouvons livrer les couvres joints intérieurs de recouvrement lesquels assurent le joint entre la menuiserie aluminium et le doublage.

De toute évidence les tapées d’isolation ne sont pas nécessaires si l’épaisseur du dormant couvre entièrement celle de l’isolant. C’est le cas des baies coulissantes dont les dormants sont des épaisseurs entre 120 et 250 mm en fonction du système utilisé.

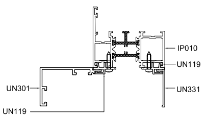
UN 119 = profil d’attache fixé sur le dormant à l’usine
(dimensions en millimètres)

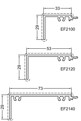
Tapées d’isolation sur l’exemple du système Aliplast :
EF2100 – 2120 – 2140 – 2160
( dimensions en millimètres )

Autres exemples des tapées d’isolation
du système ALIPLAST
( dimensions en millimètres )

Profils supplémentaires :
– rebords des fenêtres : UN 320 – 321 – 180 – 181
– seuil de porte : EF 2000
(dimensions en millimètres)

Exemples des couvre joints intérieurs
( ailes de recouvrement )

Exemple du dormant IP 010 ( menuiserie à ouvrant caché )
Profils d’attache UN119 fixés sur le dormant
Coupe horizontale

Exemple du dormant avec profil d’attache UN119
tapées d’isolation UN301 et couvre joint ( ail de recouvrement ) intérieur UN 331
Coupe horizontale

SCHEMA DE POSE EN APPLIQUE – ISOLATION PAR L’INTERIEUR

EXEMPLES DES
TAPEES D’ISOLATION

MENUISERIES AVEC

EXEMPLE DE POSE DES MENUISERIES
AVEC TAPEES D’ISOLATION ET AILES DE RECOUVREMENT INTERIEURES

Voir aussi

Si vous n’avez pas trouvé ce que vous cherchiez, regadrez autres categories de produits de haute qualité dans notre offre.