Comment
commander nos
menuiseries
menu pos

Votre question – notre réponse

Suivant votre demande nous présenterons l’offre et de bon gré apporterons des conseils

menu pos

Prise des mesures et commande

Après la prise des dimensions ( si vous la souhaitez ) assistance techniques, élaboration des détails, confirmation de commande elle est mise en réalisation

menu pos

Livraison

Le délai de livraison demandée urgente - Laste Minute - est de 10 jours. Celui Standard et de 28 à 42 jours.

menu pos

Pose

Les menuiseries sont déchargés et posées par les techniciens. S’il s’agit d’un bâtiment ancien, les menuiseries anciennes sont démontées.

plus

Seuils et appuis innovants „XPS”, isolants, en polystyrène extrudé

Avantages des seuils et appuis XPS :

  • mise en œuvre facile aussi en cas des grandes baies
  • augmentation de la valeur thermique, vénale et financière suite à la réalisation et mise en œuvre des menuiseries conformément à la réglementation RT 2020 et celle des maisons passives
  • ce produit est employé dans les constructions anciennes et nouvelles

 

  • ce produit est adapté à tous les types des maçonneries
  • plus de sensation de frois ou courant d’air à la liaison de la fenêtre avec son appui ( rejingot )
  • possibilité d’utilisation dans les constructions spéciales
Seuils et appuis XPS

Appui des fenêtres

 
APPUI DES FENETRES
L’appui de fenêtre est fabriqué de polystyrène extrudé XPS. Dans la partie supérieure appelée « tête » ou « chapiteau » on a installé une lame en PVC rigide en forme de la lettre « T ».

La lame :

  • rigidifie toute la pièce
  • constitue le support de collage de compribande classe BG1
  • constitue le support auquel on peut fixer mécaniquement la couvertine extérieure

Le « chapiteau » est laminé et soigneusement adapté aux divers profils de fenêtres ; c’est de l’importance majeure pour l’exécution parfaite d’étanchéité entre le dormant et son appui ( rejingot ).

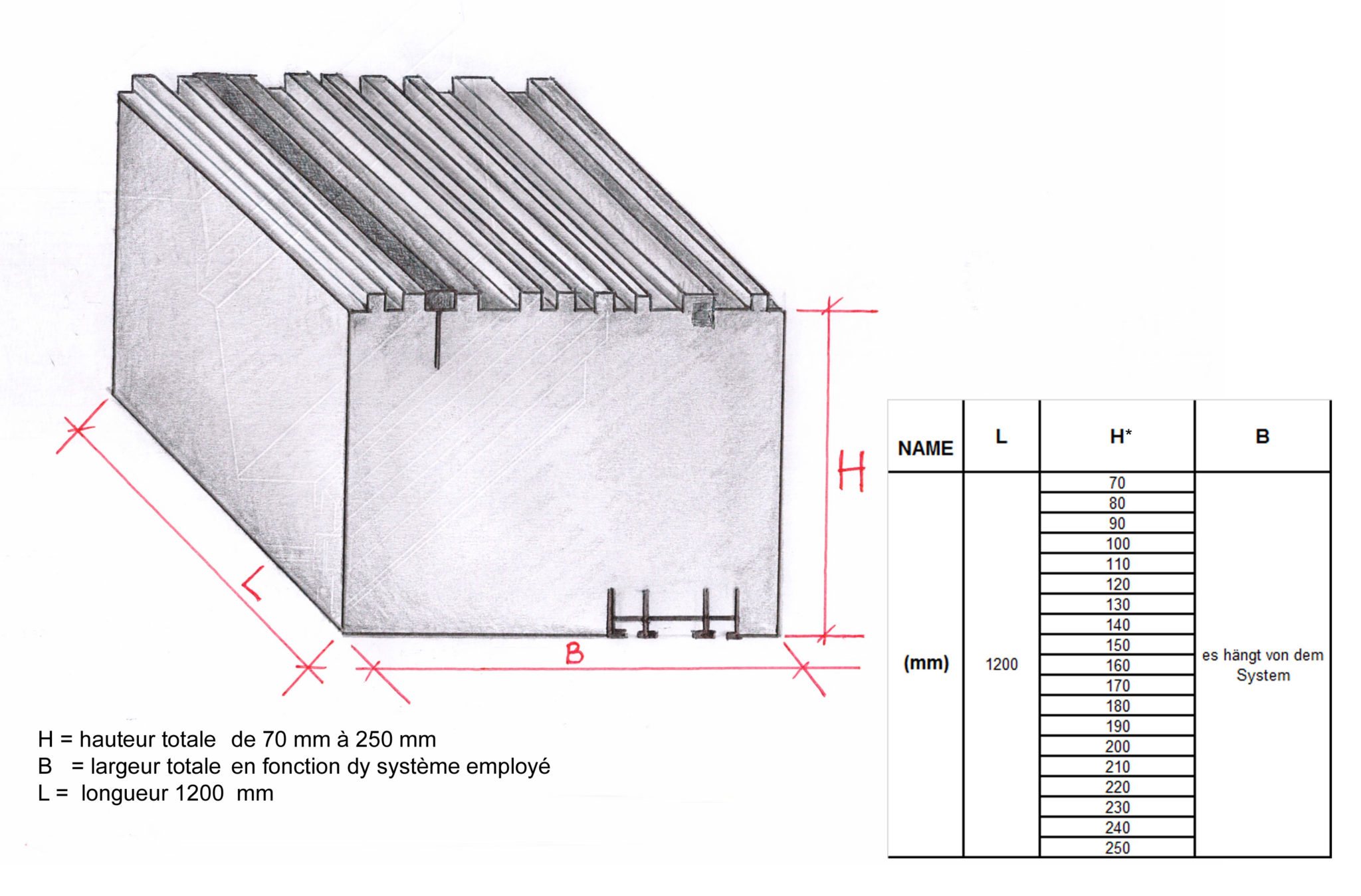
Informations techniques :

Les pièces d’appuie de la série sont fabriquées dans les dimensions suivantes :
hauteur 70 mm et largeur 385 mm. Par conséquent sont bien ajustés aux épaisseurs courantes des murs.

La pièce d’appui est réalisée en quatre variantes :
A – rebord extérieur de fenêtre jusqu’à 24 mm, intérieur jusqu’à 32 mm – version standard
B – rebord extérieur de fenêtre jusqu’à 24 mm, intérieur jusqu’à 22 mm
C – rebord extérieur de fenêtre jusqu’à 12 mm, intérieur jusqu’à 32 mm
D – rebord extérieur de fenêtre jusqu’à 12 mm, intérieur jusqu’à 22 mm

Possibilité de réaliser l’appuis XPS suivant les dimensions et la géomètrie demandées par le client, suivant les côtes extérieures et détails de la coupe imposés.

Paramètres :

Réaction au feu : Euroclasse E
Résistance à la compression : déformation 10 % au dela de 300 kPa
Coefficient de conductivité thermique : λ = 0,036 W/m²°k
Résistance au vent : classe C5, suivant EN 12211
Etanchéiét à l’eau : classe 9A, selon EN 1027
Etanchéiét à l’air : classe 4, selon EN 1026 

Thermo-SA-aussen

Demi-appui extérieur

 
DEMI- APPUI EXTERIEUR
Demi-Appui extérieur est fabriqué en polystyrène extrudé XPS. Dans la partie haute appelée « tête » ou « chapiteau » on a installé une lame en PVC rigide en forme de la lettre « T ».
La lame :
– rigidifie toute la pièce
– constitue le support de collage de compribande classe BG1
– constitue le support auquel on peut fixer mécaniquement la couvertine extérieure
Le « chapiteau » est laminé et soigneusement adapté aux divers profils de fenêtres. C’est de l’importance majeure pour l’exécution parfaite d’étanchéité entre le dormant et son appui ( rejingot ).
Détail important de demi-appuis extérieur est la lame d’acrochage en PVC rigide, intégrée avec la partie basse.
Elle permet et facilite la liaison du demi-appui avec le mur à l’aide des ancres.Informations techniques :Les pièces de demi-appuie de la série sont fabriquées dans les dimensions suivantes :
hauteur 70 mm, largeur 205 mm et longueurs de 1200 mm.Elles sont employées dans les cas des rebords de fenêtres de l’épaisseur non courante, en brique par exemple.Demi-appui extérieur et fabriqué en deux variantes :

  • rebord extérieur jusqu’à 24 mm – version standard
  • rebord extérieur jusqu’à 12 mm

Possibilité de réaliser l’appuis XPS suivant les dimensions et la géomètrie demandées par le client, suivant les côtes extérieures et détails de la coupe imposés.

Paramètres :
Réaction au feu : Euroclasse E
Résistance à la compression : déformation 10 % au déla de 300 kPa
Coefficient de conductivité thermique : λ = 0,036 W/m²°k
Résistance au vent : classe C5, suivant EN 12211
Etanchéiét à l’eau : classe 9A, selon EN 1027
Etanchéiét à l’air : classe 4, selon EN 1026

thermo-

Demi-appui intérieur

 
Unterfensterblock für Fenster in der Dämmschicht
Demi-Appui intérieur est fabriqué de polystyrène extrudé XPS. Dans la partie haute appelée « tête » ou « chapiteau » on a installé une lame en PVC rigide en forme de la lettre « T ».
La lame :
– rigidifie toute la pièce
– constitue le support de collage de compribande classe BG1
– constitue le support auquel on peut fixer mécaniquement la couvertine extérieure
Le « chapiteau » est laminé et soigneusement adapté aux divers profils de fenêtres. C’est de l’importance majeure pour l’exécution parfaite d’étanchéité entre le dormant et son appui.
Détail important de demi-appuis extérieur est lame d’acrochage en PVC rigide, intégrée avec sa partie intérieure.
Elle permet et facilite la liaison du demi-appui avec le mur à l’aide des ancres.Informations techniques :Les pièces de demi-appuie intérieur de la série sont fabriquées dans les dimensions suivantes :
hauteur 70 mm, largeur 205 mm et longueurs de 1200 mm.Elles sont employées dans les cas des rebords de fenêtres de l’épaisseur non courante, en brique par exemple.Demi-appuie intérieur est fabriqué en deux variantes :
– rebord extérieur jusqu’à 32 mm – version standard
– rebord extérieur jusqu’à 22 mmPossibilité de réaliser l’appuis XPS suivant les dimensions et la géomètrie demandées par le client, suivant les côtes extérieures et détails de la coupe imposés.

Paramètres :
Réaction au feu : Euroclasse E
Résistance à la compression : déformation 10 % au déla de 300 kPa
Coefficient de conductivité thermique : λ = 0,036 W/m²°k
Résistance au vent : classe C5, suivant EN 12211
Etanchéité à l’eau : classe 9A, selon EN 1027
Etanchéité à l’air : classe 4, selon EN 1026
Thermo-EAE-1

Seuil des portes et portes-fenêtres

 
SEUIL DES PORTES ET PORTES-FENETRES
Seuil de portes et portes-fenêtres est fabriqué de polystyrène extrudé XPS. Dans la partie haute appelée « tête » ou « chapiteau » on a installé une lame en PVC rigide en forme de la lettre « T ».

La lame :
– rigidifie toute la pièce
– constitue le support de collage de compribande classe BG1
– constitue le support auquel on peut fixer mécaniquement la couvertine extérieure
Le « chapiteau » est laminé et soigneusement adapté aux divers profils de fenêtres. C’est de l’importance majeure pour l’exécution parfaite d’étanchéité entre le dormant et son appui.
Détail important de demi-appuis extérieur est lame acrochage en PVC rigide, intégrée avec sa partie basse.
Elle permet et facilite la liaison du demi-appui avec le mur à l’aide des ancres.

Informations techniques :

Les pièces de demi-appuie intérieur de la série sont fabriquées dans les dimensions suivantes :
hauteur 70 mm – 250 mm , largeur 115 mm et longueurs de 1200 mm.

Elles sont employées dans les cas des rebords de fenêtres de l’épaisseur non courante, en brique par exemple.

Demi-appuie intérieur est fabriqué en deux variantes :
– rebord extérieur jusqu’à 32 mm – version standard
– rebord extérieur jusqu’à 22 mm

Possibilité de réaliser l’appuis XPS suivant les dimensions et la géomètrie demandées par le client, suivant les côtes extérieures et détails de la coupe imposés.


Paramètres :
Réaction au feu : Euroclasse E
Résistance à la compression : déformation 10 % au déla de 300 kPa
Coefficient de conductivité thermique : λ = 0,036 W/m²°k
Résistance au vent : classe C5, suivant EN 12211
Etanchéité à l’eau : classe 9A, selon EN 1027
Etanchéité à l’air : classe 4, selon EN 1026
Thermo-HSA

Seuil/Appui pour baies coulissantes et systèmes levant-coulissants

 
SEUIL / APPUI POUR BAIES COULISSANTES et SYSTEMES LEVANT-COULISSANTS
Sont utilisés principalement pour la pose des portes-fenêtres et baies coulissantes.

Seuil / Appui pour baies est fabriqué de polystyrène extrudé XPS. Dans la partie haute appelée « tête » ou « chapiteau » on a installé une lame en PVC rigide en forme de la lettre « T ».
La lame :
– rigidifie toute la pièce
– constitue le support de collage de compribande classe BG1
– constitue le support auquel on peut fixer mécaniquement la couvertine extérieure
Le « chapiteau » est laminé et soigneusement adapté aux divers profils de fenêtres. C’est de l’importance majeure pour l’exécution parfaite d’étanchéité entre le dormant et son appui.
Détail important de demi-appuis extérieur est lame acrochage en PVC rigide, intégrée avec sa partie inférieure.
Elle permet et facilite la liaison du seuil avec le mur à l’aide des ancres.

Informations techniques :

Les pièces de seuil/appui simplifié de la série sont fabriquées dans les dimensions suivantes :
hauteur 40 mm – 100 mm , largeur en fonction du système et type des menuiseries et longueurs de 1200 mm.

Elles sont employées dans les cas des rebords de fenêtres de l’épaisseur non courante, en brique par exemple.

Demi-appuie intérieur est fabriqué en deux variantes :
– rebord extérieur jusqu’à 32 mm – version standard
– rebord extérieur jusqu’à 22 mm

Possibilité de réaliser l’appuis XPS suivant les dimensions et la géomètrie demandées par le client, suivant les côtes extérieures et détails de la coupe imposés.


Paramètres :Réaction au feu : Euroclasse E
Résistance à la compression : deformation 10 % au déla de 300 kPa
Coefficient de conductivité thermique : λ = 0,036 W/m²°k
Résistance au vent : classe C5, suivant EN 12211
Etanchéité à l’eau : classe 9A, selon EN 1027
Etanchéité à l’air : classe 4, selon EN 1026

Thermo FBA Montage

1-1

1. Vérifiez les niveaux de la maçonnerie

2

2. Vérifiez l’équilibre du support de seuil / appui et ajustez si nécessaire

3

3. Insérez le connecteur de seuil / appui et ajustez sa position

4

4. Remplissez la rainure du seuil / appui avec du silicone et collez le

5

5. Etanchez l’espace entre le mur et le seuil / appui

6

6. Etanchez le joint entre deux parties du seuil / appui

7

7. Collez et étanchez l’espace entre le seuil / appui et dormant de la menuiserie

8

8. Posez définitivement la fenêtre