ThermoSlide
Gagnez plus de lumière avec des portes soulevantes-coulissantes modernes!
Les portes soulevantes-coulissantes sont idéales pour les structures grandes. Cette solution permet d’arranger votre place foncionnellement.
La manière d’utilisation de produit est très confortable. Il suffit le mouvement de la main ou l’appui sur le bouton (en cas de la quincaillerie avec le moteur) pour que la porte ouvre.
Le design moderne permet de monter la porte dans toutes les types de bâtiments. Une surface grande de vitrage éclairant chambres est un valeur plus importante.
Les avantages
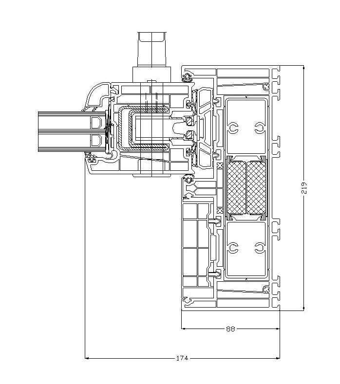
- 3 surfaces d’étanchéite garantissent l’isolation thermique et protègent contre l’environnement défavorable (vent et pluie)
- le seuil bas ergonomique et multichambre avec ruptures thermiques et isolateurs de mousse élimine „le lieu froid” près du sol
- la possibilité de monter la porte coulissante anti-intrusion jusqu’à a la classe RC2
ThermoSlide est un système ideal pour les surface grandes de vitrage (la possibilité de monter le vantail avec le vitrage du poids maximal 400 kg) - l’utilisation de quincaillerie moderne garantit la sécurité d’utilisation et la fonctionnalité (ouverture et fermeture facile)
- adéquat aux bâtiments passives
Nos spécialistes vont préparer pour toi un devis personnalisé en 1 jour.
Adresses-nous par e-mail les dimensions des ouvertures en maçonnerie et l’information quel type de menuiseries t’intéresse.
Nous savons que ton temps est précieux, c’est la raison pour laquelle nous t’invitons de profiter de notre Configuratuer on-line. Le chiffrage de chaque fenêtre, volet ou store ne prendra que 40 secondes et en plus tu recevras en cadeau une remise de 5%.
(1) Barrière thermique élimine les ponts thermiques
(2) Seuil bas pour un confort élevé
(3) Garantie d’un maximum de lumière
(4) 3 surfaces d’étanchéite garantissent l’isolation thermique et protègent contre l’environnement défavorable

L’économisation de l’énergie non seulement protège du climat, mais aussi votre argent. Des profilés multi-chambre en PVC, une profondeur de 82 mm, et triple vitrage Schüco garantissent bonne isolation thermique (Uw ≤ 0,8 W / (m2K)). Cela signifie un haut niveau de confort pendant l’hiver et l’été.
Un système d’étanchéité innovant garantit la protection contre le bruit. De plus, le système de quincaillerie robuste répond aux exigences les plus élevées en ce qui concerne la classe de résistance (RC2).
Avec le système Schüco Thermoslide, qui se caractérisé par une excellente isolation thermique, il est possible de mettre le vitrage jusqu’à 52 mm. Il est destiné aux maisons passives (Uw ≤ 0,8 W/m²K).
Un système d’étanchéité innovant est non seulement résistant aux intempéries mais aussi protège contre le vent et la pluie en assurant également une isolation acoustique optimale.
La porte fournit un haut niveau de confort grâce à 3 joints et un seuil alu extrêmement bas. Grâce à une rupture thermique les ponts thermiques sont évités. Le système est très facile à utiliser, aussi pour les personnes handicapées (le seuil bas permet d’accéder facilement le balcon, terrasse ou jardin) et pour les enfants. De plus, le panneau coulissant se déplace parallèlement à la partie fixe donc vous économisez beaucoup d’espace.



Les surfaces du profilé à l’intérieur et à l’extérieur peuvent être personalisées. Un point fort de design est la finition métallique exclusive de Schüco AutomotiveFinish. Toute la gamme de couleurs et la possibilité d’utilisation de garniture d’aluminium (Schüco TopAlu) anodé ou laqué de couleur préférée du nuancier RAL permet de dessiner la porte coulissante moderne.
Schüco ThermoSlide de profondeur de 82 mm offre la haute isolation de fenêtres telle que les autres systèmes: Schüco Thermo 6 et Schüco Alu Inside. Contactez-nous et nous fournissons des informations détailées.
Voir aussi
Notre offre comprend actuellement les fenêtres innovantes à 5 chambres qui sont faites des profilés de la plus haute qualité Schüco. Tous les systèmes répondent aux besoins de nos clients les plus exigeants.














































