Comment
commander nos
menuiseries
menu pos

Votre question – notre réponse

Suivant votre demande nous présenterons l’offre et de bon gré apporterons des conseils

menu pos

Prise des mesures et commande

Après la prise des dimensions ( si vous la souhaitez ) assistance techniques, élaboration des détails, confirmation de commande elle est mise en réalisation

menu pos

Livraison

Le délai de livraison demandée urgente - Laste Minute - est de 10 jours. Celui Standard et de 28 à 42 jours.

menu pos

Pose

Les menuiseries sont déchargés et posées par les techniciens. S’il s’agit d’un bâtiment ancien, les menuiseries anciennes sont démontées.

plus

EasySlide

Gagnez plus de lumière avec des portes soulevantes-coulissantes modernes!

Les portes soulevantes-coulissantes sont idéales pour les structures grandes. Cette solution permet d’arranger votre place foncionnellement.
La manière d’utilisation de produit est très confortable. Il suffit le mouvement de la main ou l’appui sur le bouton (en cas de la quincaillerie avec le moteur) pour que la porte ouvre.
Le design moderne permet de monter la porte dans toutes les types de bâtiments. Une surface grande de vitrage éclairant chambres est une valeur plus importante.

Les avantages

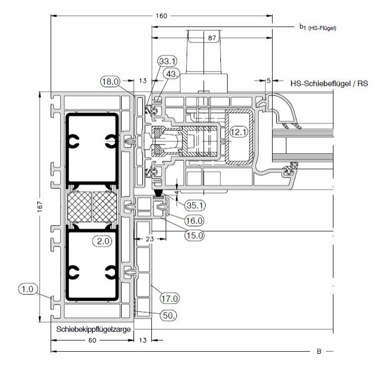
  • Profondeur de dormant de 70 mm
  • Haute isolation thermique
  • Seuil bas élimine „le lieu froid” près de sol

Nos spécialistes vont préparer pour toi un devis personnalisé en 1 jour.
Adresses-nous par e-mail les dimensions des ouvertures en maçonnerie et l’information quel type de menuiseries t’intéresse.

Nous savons que ton temps est précieux, c’est la raison pour laquelle nous t’invitons de profiter de notre Configuratuer on-line. Le chiffrage de chaque fenêtre, volet ou store ne prendra que 40 secondes et en plus tu recevras en cadeau une remise de 5%.

(1) Etanchéite garantit l’isolation thermique
(2) Seuil bas pour un confort élevé
(3) Garantie d’un maximum de lumière

Le système a obtenu des excellentes propriétés d’isolation thermique, une profondeur de base de 70 mm et un vitrage isolant de haute qualité.
Un système d’étanchéité innovant est non seulement résistant aux intempéries et protège contre le vent et la pluie, mais également assure une isolation acoustique optimale. La rupture thermique élimine les ponts thermiques.
Le système EasySlide offre une grande variété de types d’ouverture. En fonction de la taille de l’ouverture il y a des versions à deux, trois ou quatre vantaux. Le panneau coulissant se déplace parallèlement à la partie fixe donc vous économisez beaucoup d’espace. La porte offre une utilisation très facile.
Des grandes tailles de verre fournissent la luminosité maximale et augmentent votre confort.
Le seuil bas offre l’accès confortable à un balcon, terrasse ou jardin, en particulier pour les enfants et les personnes handicapées.

La flexibilité de système offre une grande variété de types d’ouvertures. Nous proposons un large éventail de couleurs et de dessins que vous pouvez choisir.
Schüco EasySlide offre la haute isolation de fenêtres comme autres systèmes: Schüco Corona CT 70. Contactez-nous et nous fournissons des informations détailées.

Voir aussi

Notre offre comprend actuellement les fenêtres innovantes qui sont faites des profilés de la plus haute qualité Schüco. Tous les systèmes répondent aux besoins de nos clients les plus exigeants.

Dans l’offre: fenêtres, portes, volets et stores.

Vous pouvez économiser avec nous.