Schüco Corona CT 70 Rondo
Description
La ligne de l’ouvrant en relief et légere optiquement diminue l’épaisseur des profilés
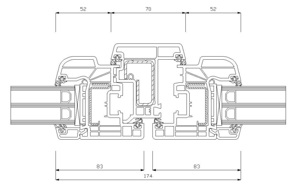
La profondeur de dormant 70 mm
L’option de montage de pleusieurs type de vitrage: double ou triple, sécurité et décor
L’option de montage de la quincaillerie anti-intrusion
Les joints de haute qualité augmentent l’isolation acoustique
Les profilés d’acier garantissent la stabilité
Les avantages
- Bonne isolation thermique
- Système à 5 chambres, profondeur de dormant 70 mm
- Profilés d’acier, durables et résistants à la corrosion (galvanisés) garantit la stabilité
- Valeurs Uf de 1,2 à 1,5 W/m²K
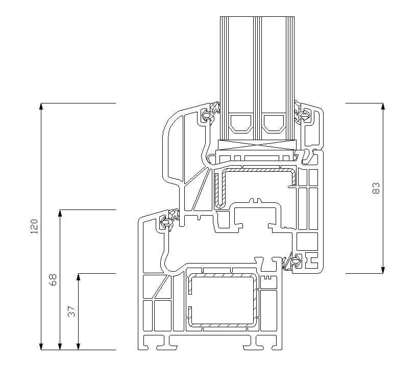
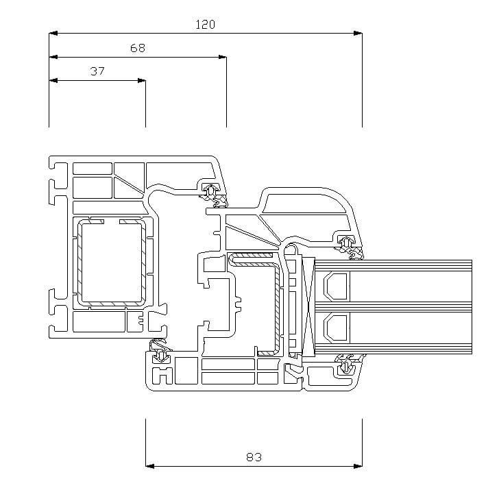
- Largeur de 120 mm garantit la luminosité
- 3 lignes de design: Classic, Rondo, Cava
- Système à double étanchéité
- Résistance aux effractions selon la norme DIN EN 1627 jusqu’à RC2 (WK2)
- Optionnellement: garniture en aluminium (Schüco TopAlu)
- Compatible avec le système de porte coulissante Schüco CT 70 EasySlide

Design attractive
Vous avez le choix entre les trois formes de profilé 1 pour souligner le charactère de votre maison. Les joints en couleur argent et gris 2 et la surface près de vitrage profonde 3 supportent l’apparence de profilés.
Isolation thermique élevée
La technologie innovante avec 5 chambres isolantes 4 et une profondeur de dormant de 70 mm assure une excellente isolation thermique. Il y a deux niveaux d’étanchéité 5. Le vitrage 6 garantit une haute isolation thermique.
Vivez confortablement
Le système d’étanchéité avec deux joints 5 et les caractéristiques particulières du verre isolant offrent une excellente protection contre le bruit, la pluie et le vent.
Le verre supporte aussi la protection acoustique 6.
Durable et respectueux de l’environnement
Les profilés en acier résistants à la corrosion 7 garantissent la stabilité et la fiabilité, la consommation d’énergie minimale, faibles émissions de CO2 et la recyclabilité totale.
Facile à nettoyer
La surface lisse et imperméable 7 facilite le nettoyage et la durabilité.

Nos spécialistes vont préparer pour toi un devis personnalisé en 1 jour.
Adresses-nous par e-mail les dimensions des ouvertures en maçonnerie et l’information quel type de menuiseries t’intéresse.
Nous savons que ton temps est précieux, c’est la raison pour laquelle nous t’invitons de profiter de notre Configuratuer on-line. Le chiffrage de chaque fenêtre, volet ou store ne prendra que 40 secondes et en plus tu recevras en cadeau une remise de 5%.
Voir aussi
Notre offre comprend actuellement les fenêtres innovantes à 5 chambres qui sont faites des profilés de la plus haute qualité Schüco. Tous les systèmes répondent aux besoins de nos clients les plus exigeants.
Dans l’offre: fenêtres, portes, volets et stores.
Vous pouvez économiser avec nous.



















































